Let's Get It Started
WE'VE BROKEN GROUND!
Construction has officially begun at our Laurel heights location and we're on track to open this Summer. Check back for more updates or sign up for our newsletter to get the latest Mary Modern news!
Big Things Are Happening
Check out our construction progress
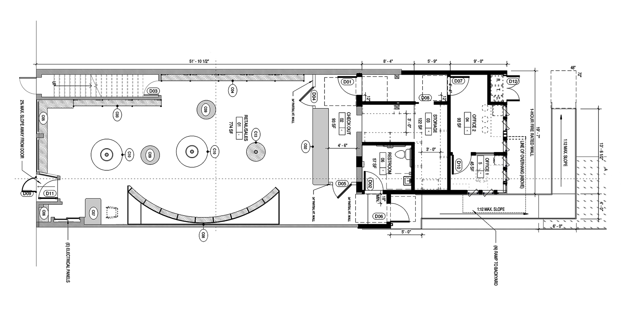
Thoughtfully Designed.
Mary Modern's floor plan is designed to mitigate foot traffic and congestion all while maintaining an elevated look and feel.
Good Neighbor Policy
Good Neighbor Policy according to Cannabis Business Permit Community Outreach pursuant to Section 1609(b)(19) of the San Francisco Police Code.
- a. Adhere to all ordinances set by San Francisco Police Code, Article 16: Regulation of Cannabis.
- b. Community Liaison Officer provided to address issues of concern to neighbors.
- c. Enforce the City's ordinance that no cannabis shall be smoked, ingested or otherwise consumed in the public right-of-way within fifty (50) feet of the establishment.
- d. Post all required signage, in accordance with the Planning Code, in well-lit areas easily viewable to the public.
- e. No cannabis shall be cultivated at this establishment.
- a. On-site Security Personnel present during the hours of operation:
- i. prohibit entry and service offered to persons under 21 years of age.
- ii. secure the premises within fifty (50) feet of any public entrance and exit.
- iii. I. Compliance (c.); Enforce that no cannabis shall be smoked, ingested or otherwise consumed within fifty (50) feet of the establishment.
- iv. prohibit littering and loitering.
- b. Fixed surveillance cameras on the exterior of the establishment including sidewalks.
- c. 24/7 alarm system will be installed for after-hours monitoring.
- d. Well-lit exterior extends to the sidewalk.
- a. Safe cash handling practices, such as cash drops, to limit amounts of cash on-site.
b. Hire qualified staff members that meet Mary Modern’s employment standards.
c. Regularly scheduled Staff training to:- i. gain knowledge in order to enforce compliance and best practices.
- ii. educate patrons on safe and responsible cannabis consumption.
- iii. maintain an inviting environment.
- a. Maintain clean air policies pursuant to 1618 (v.) to provide proper ventilation that will inhibit the smell of cannabis outside of the establishment.
- b. Daily litter removal in front of and within one hundred (100) feet of the premises.
- c. Routinely steam/pressure cleaning of the main entrance and abutting sidewalks.
- d. Garbage containers shall be kept within the building until pick-up by the disposal company.
- e. Any graffiti shall be abated as soon as practicable.
- f. Window treatments that maintain security and offer commercial appeal.
- a. Notices urging patrons to leave the establishment and neighborhood in a quiet, peaceful and orderly fashion and to please not litter or block driveways in the neighborhood.
- b. Discrete signage will not advertise or promote the use of cannabis to minors.
- c. Zero tolerance for double parking and will refuse entrance to any member who does.
- d. Comply with Article 29 of S.F. Police Code; noise generated by fixed-source equipment not to exceed decibel levels specified.
- e. Encourage members to get to the establishment by public transportation.
- a. Seniors Discount provided to patrons 55 years or older.
- b. Discount provided to current cancer patients (documentation required).
Work With Us
WE'RE HIRING!
We’re currently looking for professionals who are passionate about cannabis to fill positions at our Laurel Heights location in San Francisco, CA.


